Skip to main content

Commerciale

Vendita

65.000€

Rif: Uffici Viale Europa

titolo-img

- mq

titolo-img

- locali

titolo-img

-

UFFICI DI VARIE METRATURE IN ZONA BANCHE

Vicenza, Vicenza, Viale Europa 12

Vedi planimetria Vedi galleria

Informazioni

Proponiamo in vendita una serie di uffici situati al piano terra di un grande contesto condominiale, nella Zona Banche di Vicenza. Una posizione strategica, comoda sia al centro storico che ai principali istituti bancari e direzionali della città, con presenza di numerosi parcheggi nelle vicinanze. Soluzione perfetta per chi cerca visibilità, praticità e un ambiente lavorativo flessibile in una delle zone più richieste di Vicenza.

Caratteristiche principali:

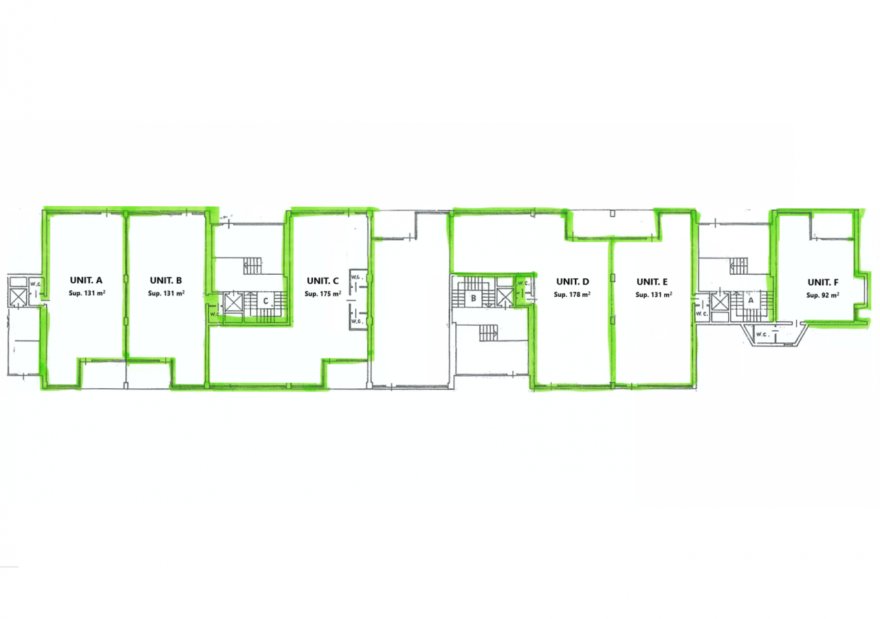
Superfici disponibili da 90 a 180 mq
Doppio ingresso per maggiore versatilità e funzionalità
Possibilità di abbinamento garages, per un comodo accesso e parcheggio
Spazi ideali per studi professionali, società di servizi, studi medici o dentistici

Unità disponibili:
Unit. A, 120 mq, richiesta: 80.000 € [DISPONIBILE]
Unit. B, 120 mq, richiesta: 85.000 € [DISPONIBILE]
Unit. C, 160 mq, richiesta: 100.000 € [DISPONIBILE]
Unit. D, 160 mq, richiesta: 100.000 € [PRENOTATA]
Unit. E, 120 mq, richiesta: 85.000 € [VENDUTA]
Unit. F, 87 mq, richiesta: 65.000 € [LOCATA]

Continua a leggere...

Dettagli

Tipologia: Ufficio

Anno immobile: 1984

Stato: Italia

Zona: Mercato Nuovo

Superfice lotto (mq): n/d

Giardino (mq): n/d

Classe energetica: F

Consumo medio (kW): 0.00

Vedi di più

ZANGUIO IMMOBILIARE

Contrà Carpagnon, 1, 36100 Vicenza VI

Orari: 9:00 – 12:30 | 15:00 – 19:00
Sabato e Domenica chiuso

HAI BISOGNO DI INFORMAZIONI?

Lasciaci un tuo contatto, ti arriverà una email di conferma e verrai ricontattato al più presto.

    A seguito dell' informativa ricevuta fornisco il consenso al trattamento dei miei dati personali.

    Livelli

    Totale piani 7

    Altre Caratteristiche

    Stato manutenzione Buono

    Numero portoni 2

    Impianto elettrico Da verificare

    Connettività Fibra

    Mappa

    Vicenza, Vicenza, Viale Europa 12

    Sei interessato a questo immobile?

    Scrivici per conoscere i dettagli e le possibilità di acquisto.